Однокомнатная квартира в новостройке 36,97 м2 по ул. Уральская 87/7 за 6702661 руб.

Адрес
Адрес Уральская, 87/7
Описание
Цена 6 702 661 р. (181 300 р./м2)
Подать заявку на ипотеку
Количество комнат Однокомнатная
Этаж 16
Этажность дома 23
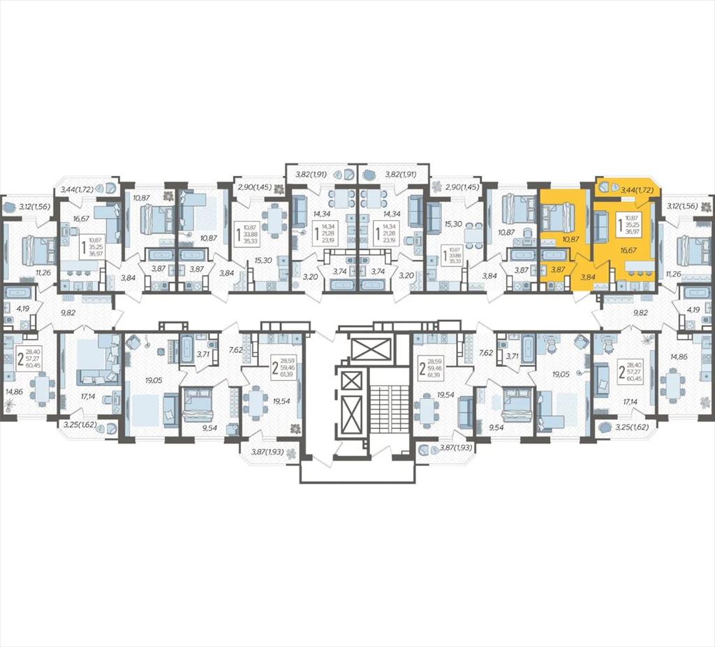
Общая S, м2 36,97
Жилая S, м2 0,00
S кухни, м2 16,67
Продаётся 1-комнатная квартира в строящемся доме (Дом Литер 1), срок сдачи: 1 кв. 2025, общей площадью 36.97 кв.м., на 16 этаже. Без отделки, но с возможностью заказать отделку Дом URAL естественным образом, благодаря своей форме, образует закрытую территорию. Стильный фасад дополняют застекленные панорамные лоджии и балконы. С верхних этажей в солнечную погоду можно рассмотреть очертания гор Большого Кавказа. На территории комплекса откроется детский сад и фитнес-центр.Дом URAL находится близко к удобным транспортным развязкам, благодаря чему выезд на море за час без пробок! Внимание уделено придомовой территории с ландшафтным озеленением c системой автоматического полива, современным детским и спортивным площадкам. У ЖК огромная двухуровневая парковка на 819 машиномест. Инфраструктура: До ТРК “СБС Мегамолл”, “Ашана”, ТРК “Галактика” - 5 минут на авто или 20 минут пешком Гимназия 88, Академия футбола “Краснодар”, Детский сад №138 - 5 минут на авто или 20 пешком Поликлиника 17, 7 - 5 минут на авто, 15 пешком Фитнес-клубы 50GYM и X-Fit - 5 минут на авто или 20 пешком Номер квартиры 1377. Подъезд №9. id: 35235
Квартира в новостройке в Краснодаре
Дата 16.12.2025 2:26:00
Объявление № 23803502
Дата подачи:
16 декабря 2025 г. 2:26
Дата обновления:
16 декабря 2025 г. 2:26
Просмотров 3 Хотите продать быстрее?

Продавец
Агентство недвижимости:
Андреева Ирина Сергеевна
email: 89225397055avega@gmail.co m
Показать номер телефона
Пожаловаться
Комментарии:
Добавить